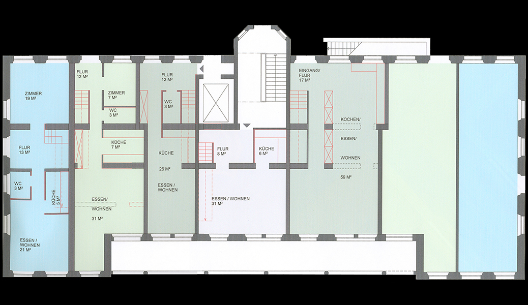
QUARTIER 21
Hamburg-Barmbek
Studie
Navigation überspringen
PROJEKTE
ÜBER UNS
JOBS
PRESSE
KONTAKT
Navigation überspringen
BÜRO
Kontorhaus Herrengraben
Notariat Spitalerstraße
Kontorhaus Hopfenmarkt
Bürohaus ABC-Straße
Bürohaus Hopfenmarkt
Kontorhaus Sudanhaus
Konrad-Adenauer-Ufer
Dispomedica
Aquacarre Berlin
Allianzhochhaus
Opern Plaza
Business Cubes Ahrensburg
Axel-Springer-Platz
Reederei B. Schulte
Bugenhagenhaus
Kaispeicher A
Katharinenstraße
SPS Hafencity
St. Petri
Euroland-Loft
LINKSrechts
WOHNEN
IBA Waterhouses
Schwanenwik
Weserterrassen
Corpshaus Heidelberg
Jungfrauenthal
Altenheim Edelweiss
Seniorenwohnen Wilstorf
IBA Inselpark
Klughafen Lübeck
Fördepark Kiel
Quartier 21
VILLEN
Villa D Hochkamp
Villa B Nienstedten
Villa D Othmarschen
Villa BP Blankenese
Villa W Blankenese
Villa O Blankenese
Villa WP Blankenese
Villa I Harvestehude
Villa Rothenbaum
Villa O Harvestehude
Villa Tamarit ESP
Villa Zürichberg CH
Villa Studien
STUDIO
NDR Sendeabwicklung 1
NDR Editing
NDR Ingest
NDR 3
NDR Hauptschaltraum
NDR Sendeabwicklung 2
NDR Sendesaal HAN
NDR Zentrales Film-Archiv
SPEZIAL
BID Nikolai Quartier
Seebadeanstalt
NDR CI / CD
NDR Kasino
NDR Pförtner Rothenbaum
NDR Pförtner Mittelweg
EXPO 2000
Unilever Messe anuga
CISCO
Smart
Neue Oper Oslo
Galerie Camerawork
INTERIOR
Wohnen
Notariat Spitaler Strasse
Vontobel Private Banking
Euroland
LINKSrechts
Navigation überspringen
IBA Waterhouses
Schwanenwik
Weserterrassen
Corpshaus Heidelberg
Jungfrauenthal
Altenheim Edelweiss
Seniorenwohnen Wilstorf
IBA Inselpark
Klughafen Lübeck
Fördepark Kiel
Quartier 21
QUARTIER 21
Hamburg-Barmbek
Study
QUARTIER 21
Hamburg-Barmbek
Study
QUARTIER 21
Hamburg-Barmbek
Study
QUARTIER 21
Hamburg-Barmbek
Study
QUARTIER 21
Hamburg-Barmbek
Study