- Kontorhaus Herrengraben
- Notariat Spitalerstraße
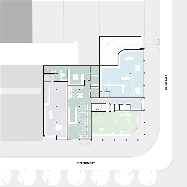
- Kontorhaus Hopfenmarkt
- Bürohaus ABC-Straße
- Bürohaus Hopfenmarkt
- Kontorhaus Sudanhaus
- Konrad-Adenauer-Ufer
- Dispomedica
- Aquacarre Berlin
- Allianzhochhaus
- Opern Plaza
- Business Cubes Ahrensburg
- Axel-Springer-Platz
- Reederei B. Schulte
- Bugenhagenhaus
- Kaispeicher A
- Katharinenstraße
- SPS Hafencity
- St. Petri
- Euroland-Loft
- LINKSrechts




